Департамент архитектуры и городского планирования сообщает: 1. Об инициировании составления детальной планировки земельных участков Madise tn 26 и Madise tn 26a решением №54 Нарвского горсобрания...

Сообщение Департамента архитектуры и городского планирования

Департамент архитектуры и городского планирования сообщает: 1. Об инициировании составления детальной планировки земельных участков Madise tn 26 и Madise tn 26a решением №54 Нарвского горсобрания...

Свое мнение и возражения по поводу проекта условий на проектирование можете предоставлять в департамент архитектуры и городского планирования в течение 14 дней с момента публикации объявления по...

Проект условий на проектирование (Nirgi 22)

Свое мнение и возражения по поводу проекта условий на проектирование можете предоставлять в департамент архитектуры и городского планирования в течение 14 дней с момента публикации объявления по...

Свое мнение и возражения по поводу проекта условий на проектирование можете предоставлять в департамент архитектуры и городского планирования в течение 14 дней с момента публикации объявления по...

Проект условий на проектирование (Võsa 13)

Свое мнение и возражения по поводу проекта условий на проектирование можете предоставлять в департамент архитектуры и городского планирования в течение 14 дней с момента публикации объявления по...

Свое мнение и возражения по поводу проекта условий на проектирование можете предоставлять в департамент архитектуры и городского планирования по адресу Peetri plats 5, 20308 Narva linn или на адрес...

Проект условий на проектирование (Elektrijaama tee 29)

Свое мнение и возражения по поводу проекта условий на проектирование можете предоставлять в департамент архитектуры и городского планирования по адресу Peetri plats 5, 20308 Narva linn или на адрес...

Мнения можно предоставлять в письменной форме по почте (Peetri plats 5, 20308 Narva linn) или по электронной почте narvaplan@narva.ee.

13.-28.09.2025 публичная демонстрация эскиза детальной планировки земельного участка основной школы Soldina

Мнения можно предоставлять в письменной форме по почте (Peetri plats 5, 20308 Narva linn) или по электронной почте narvaplan@narva.ee.

Департамент окружающей среды сообщает, что принял к рассмотрению ходатайство о выдаче экологического разрешения нр KL-512434, поданное садовым товариществом SVETOFOR (регистрационный код 80021329).

Сообщение Департамента окружающей среды (AÜ Svetofor)

Департамент окружающей среды сообщает, что принял к рассмотрению ходатайство о выдаче экологического разрешения нр KL-512434, поданное садовым товариществом SVETOFOR (регистрационный код 80021329).

В северной части садоводческого товарищества Elektron района Кудрукюла стартовали работы по реализации пилотного решения по устойчивому управлению дождевой водой.

В районе Кудрукюла начались строительные работы в рамках пилотного проекта LIFE LATESTadapt

В северной части садоводческого товарищества Elektron района Кудрукюла стартовали работы по реализации пилотного решения по устойчивому управлению дождевой водой.

Департамент архитектуры и городского планирования организует публичное обсуждение результатов публичной демонстрации проекта/эскиза детальной планировки 11 сентября 2025 в 16:00 в конференц-зале...

Детальная планировка исторического квартала улицы Rüütli и прилегающей территории

Департамент архитектуры и городского планирования организует публичное обсуждение результатов публичной демонстрации проекта/эскиза детальной планировки 11 сентября 2025 в 16:00 в конференц-зале...

Жюри выбрало художника и инсталляцию в рамках программы Нарвской художественной резиденции NAIR 2025 года. Конкурс вызвал беспрецедентный интерес: на приглашение откликнулись художники со всего...

Инсталляция в городском пространстве Нарвы 2025

Жюри выбрало художника и инсталляцию в рамках программы Нарвской художественной резиденции NAIR 2025 года. Конкурс вызвал беспрецедентный интерес: на приглашение откликнулись художники со всего...

Департамент Архитектуры и Городского планирования Нарвской Городской управы опубликовывает проект условий на проектирование «Расширение частного дома по адресу 2. Jõesuu tn 21 без составления...

Сообщение Департамента архитектуры и городского планирования (2. Jõesuu tn 21)

Департамент Архитектуры и Городского планирования Нарвской Городской управы опубликовывает проект условий на проектирование «Расширение частного дома по адресу 2. Jõesuu tn 21 без составления...

Департамент архитектуры и городского планирования Нарвской городской управы сообщает об организации публичной демонстрации проекта/эскиза детальной планировки Elektrijaama tee 50, Elektrijaama...

Публичная демонстрация детальной планировки Elektrijaama tee 50, Elektrijaama tee 90 и прилегающей территории

Департамент архитектуры и городского планирования Нарвской городской управы сообщает об организации публичной демонстрации проекта/эскиза детальной планировки Elektrijaama tee 50, Elektrijaama...

Департамент архитектуры и городского планирования сообщает об установлении детальной планировки земельного участка Kreenholmi tn 54a решением №43 Нарвского городского собрания от 19.06.2025.

Сообщение Департамента архитектуры и городского планирования (Kreenholmi 54a)

Департамент архитектуры и городского планирования сообщает об установлении детальной планировки земельного участка Kreenholmi tn 54a решением №43 Нарвского городского собрания от 19.06.2025.

Свое мнение и возражения по поводу проекта условий на проектирование можете предоставлять в департамент архитектуры и городского планирования в течение 14 дней с момента публикации объявления по...

Проект условий на проектирование (Rõõmu 28)

Свое мнение и возражения по поводу проекта условий на проектирование можете предоставлять в департамент архитектуры и городского планирования в течение 14 дней с момента публикации объявления по...

Всем заинтересованным лицам предоставляется последняя возможность ознакомиться с вышеуказанными темами и, при желании, представить вопросы и комментарии в период публичной презентации с 27 июня по...

Заключительная публичная презентация новой Общей планировки Нарва 2035 перед установлением

Всем заинтересованным лицам предоставляется последняя возможность ознакомиться с вышеуказанными темами и, при желании, представить вопросы и комментарии в период публичной презентации с 27 июня по...

С осени 2022 года город Нарва участвует в международном проекте LIFE LATESTadapt – «Разработка и демонстрация портфеля природоориентированных и находчивых решений для повышения устойчивости...

Город Нарва начинает реализацию пилотного проекта по повторному использованию дождевой воды в Кудрукюла

С осени 2022 года город Нарва участвует в международном проекте LIFE LATESTadapt – «Разработка и демонстрация портфеля природоориентированных и находчивых решений для повышения устойчивости городов...

Департамента архитектуры и городского планирования сообщает, что начиная с 16.06.2025 у специалистов департамента прекратят работу настольные номера телефонов, со специалистами можно будет...

С 16 июня меняются номера телефонов

Департамента архитектуры и городского планирования сообщает, что начиная с 16.06.2025 у специалистов департамента прекратят работу настольные номера телефонов, со специалистами можно будет...

Свое мнение и возражения по поводу проекта условий на проектирование можете предоставлять в департамент архитектуры и городского планирования в течение 14 дней с момента публикации объявления по...

Проект условий на проектирование (4. Paemurru 19)

Свое мнение и возражения по поводу проекта условий на проектирование можете предоставлять в департамент архитектуры и городского планирования в течение 14 дней с момента публикации объявления по...

Опрос будет доступен онлайн до 16 июня.

Тематический опрос

Опрос будет доступен онлайн до 16 июня.

Свое мнение и возражения по поводу проекта условий на проектирование можете предоставлять в департамент архитектуры и городского планирования по адресу Peeti plats 5, 20308 Narva linn или на адрес...

Проект условий на проектирование (Hariduse 22: спортивное здание)

Свое мнение и возражения по поводу проекта условий на проектирование можете предоставлять в департамент архитектуры и городского планирования по адресу Peeti plats 5, 20308 Narva linn или на адрес...

Свое мнение и возражения по поводу проекта условий на проектирование можете предоставлять в департамент архитектуры и городского планирования в течение 14 дней с момента публикации объявления по...

Проект условий на проектирование (1. Paemurru tn 9)

Свое мнение и возражения по поводу проекта условий на проектирование можете предоставлять в департамент архитектуры и городского планирования в течение 14 дней с момента публикации объявления по...

Свое мнение и возражения по поводу проекта условий на проектирование можете предоставлять в департамент архитектуры и городского планирования в течение 14 дней с момента публикации объявления по...

Проект условий на проектирование (Sinilille 3)

Свое мнение и возражения по поводу проекта условий на проектирование можете предоставлять в департамент архитектуры и городского планирования в течение 14 дней с момента публикации объявления по...

Тематический опрос изучает как люди старше 65 лет передвигаются в городе, какой вид транспорта предпочитают, как распределяют свое время и с какими проблемами...

Тематический опрос проекта «МАРЛЕНЕ»

Тематический опрос изучает как люди старше 65 лет передвигаются в городе, какой вид транспорта предпочитают, как распределяют свое время и с какими проблемами...

Свое мнение и возражения по поводу проекта условий на проектирование можете предоставлять в департамент архитектуры и городского планирования в течение 14 дней с момента публикации объявления по...

Проект условий на проектирование (Tapamaja, Suve, Sügise, Talve, Väike-Rakvere)

Свое мнение и возражения по поводу проекта условий на проектирование можете предоставлять в департамент архитектуры и городского планирования в течение 14 дней с момента публикации объявления по...

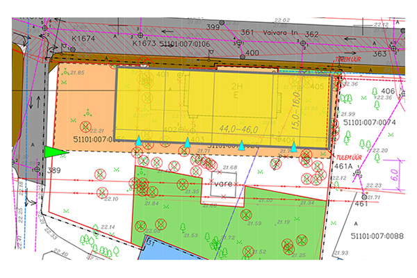
Свое мнение и возражения по поводу проекта условий на проектирование можете предоставлять в департамент архитектуры и городского планирования в течение 14 дней с момента публикации объявления по...

Проект условий на проектирование (Vaivara 4 и 8)

Свое мнение и возражения по поводу проекта условий на проектирование можете предоставлять в департамент архитектуры и городского планирования в течение 14 дней с момента публикации объявления по...

Департамент Архитектуры и Городского Планирования Нарвской Городской Управы сообщает об итогах Нарвского городского собрания от 24.04.2025...

Сообщение Департамента архитектуры и городского планирования (Elektrijaama tee 59e, Tallinna mnt 71, Raekoja plats)

Департамент Архитектуры и Городского Планирования Нарвской Городской Управы сообщает об итогах Нарвского городского собрания от 24.04.2025...

Департамент Архитектуры и Городского Планирования Нарвской Городской Управы сообщает о принятии детальной планировки земельного участка Kreenholmi tn 54a распоряжением 244-k Нарвской...

Сообщение Департамента архитектуры и городского планирования (Kreenholmi 54a)

Департамент Архитектуры и Городского Планирования Нарвской Городской Управы сообщает о принятии детальной планировки земельного участка Kreenholmi tn 54a распоряжением 244-k Нарвской...

Свое мнение и возражения по поводу проекта условий на проектирование можете предоставлять в департамент архитектуры и городского планирования в течение 14 дней с момента публикации объявления по...

Проект условий на проектирование (Kanepi 2)

Свое мнение и возражения по поводу проекта условий на проектирование можете предоставлять в департамент архитектуры и городского планирования в течение 14 дней с момента публикации объявления по...

Свое мнение и возражения по поводу проекта условий на проектирование можете предоставлять в департамент архитектуры и городского планирования в течение 14 дней с момента публикации объявления по...

Проект условий на проектирование (Tormi 10)

Свое мнение и возражения по поводу проекта условий на проектирование можете предоставлять в департамент архитектуры и городского планирования в течение 14 дней с момента публикации объявления по...

Свое мнение и возражения по поводу проекта условий на проектирование можете предоставлять в департамент архитектуры и городского планирования в течение 14 дней с момента публикации объявления по...

Проект условий на проектирование

Свое мнение и возражения по поводу проекта условий на проектирование можете предоставлять в департамент архитектуры и городского планирования в течение 14 дней с момента публикации объявления по...

Свое мнение и возражения по поводу проекта условий на проектирование можете предоставлять в департамент архитектуры и городского планирования в течение 14 дней с момента публикации объявления по...

Проект условий на проектирование (P. Kerese 29)

Свое мнение и возражения по поводу проекта условий на проектирование можете предоставлять в департамент архитектуры и городского планирования в течение 14 дней с момента публикации объявления по...

Мнения можно предоставлять в письменной форме по почте (Peetri plats 5, 20308, Narva linn) или по электронной почте narvaplan@narva.ee.

14.-24.04.2025 публичная демонстрация эскиза детальной планировки земельного участка основной школы Soldina

Мнения можно предоставлять в письменной форме по почте (Peetri plats 5, 20308, Narva linn) или по электронной почте narvaplan@narva.ee.

Свое мнение и возражения по поводу проекта условий на проектирование можете предоставлять в департамент архитектуры и городского планирования в течение 14 дней с момента публикации объявления по...

Проект условий на проектирование (Jalaka 2)

Свое мнение и возражения по поводу проекта условий на проектирование можете предоставлять в департамент архитектуры и городского планирования в течение 14 дней с момента публикации объявления по...

Свое мнение и возражения по поводу проекта условий на проектирование можете предоставлять в департамент архитектуры и городского планирования в течение 14 дней с момента публикации объявления по...

Проект условий на проектирование (Kalda 3c)

Свое мнение и возражения по поводу проекта условий на проектирование можете предоставлять в департамент архитектуры и городского планирования в течение 14 дней с момента публикации объявления по...

Свое мнение и возражения по поводу проекта условий на проектирование можете предоставлять в департамент архитектуры и городского планирования в течение 14 дней с момента публикации объявления по...

Проект условий на проектирование (Oru 4)

Свое мнение и возражения по поводу проекта условий на проектирование можете предоставлять в департамент архитектуры и городского планирования в течение 14 дней с момента публикации объявления по...

Свое мнение и возражения по поводу проекта условий на проектирование можете предоставлять в департамент архитектуры и городского планирования в течение 14 дней с момента публикации объявления по...

Проект условий на проектирование (Rakvere 26)

Свое мнение и возражения по поводу проекта условий на проектирование можете предоставлять в департамент архитектуры и городского планирования в течение 14 дней с момента публикации объявления по...

Свое мнение и возражения по поводу проекта условий на проектирование можете предоставлять в департамент архитектуры и городского планирования в течение 14 дней с момента публикации объявления по...

Проект условий на проектирование (Tehase 38-42, Tiigi 2, 2a, 2i, 2n)

Свое мнение и возражения по поводу проекта условий на проектирование можете предоставлять в департамент архитектуры и городского планирования в течение 14 дней с момента публикации объявления по...

Объектом архитектурного конкурса является новое здание основной школы вместе с прилегающей территорией, включая стадион, зоны для обучения на открытом воздухе и спортивные площадки, а также...

Объявлен архитектурный конкурс на проектирование здания основной школы в районе Солдина

Объектом архитектурного конкурса является новое здание основной школы вместе с прилегающей территорией, включая стадион, зоны для обучения на открытом воздухе и спортивные площадки, а также...

Свое мнение и возражения по поводу проекта условий на проектирование можете предоставлять в департамент архитектуры и городского планирования в течение 14 дней с момента публикации объявления по...

Проект условий на проектирование (Roheluse 20)

Свое мнение и возражения по поводу проекта условий на проектирование можете предоставлять в департамент архитектуры и городского планирования в течение 14 дней с момента публикации объявления по...

Свое мнение и возражения по поводу проекта условий на проектирование можете предоставлять в департамент архитектуры и городского планирования в течение 14 дней с момента публикации объявления по...

Проект условий на проектирование (Tormi 39)

Свое мнение и возражения по поводу проекта условий на проектирование можете предоставлять в департамент архитектуры и городского планирования в течение 14 дней с момента публикации объявления по...

Свое мнение и возражения по поводу проекта условий на проектирование можете предоставлять в департамент архитектуры и городского планирования в течение 14 дней с момента публикации объявления по...

Проект условий на проектирование (строительство водородной трубы)

Свое мнение и возражения по поводу проекта условий на проектирование можете предоставлять в департамент архитектуры и городского планирования в течение 14 дней с момента публикации объявления по...

Свое мнение и возражения по поводу проекта условий на проектирование можете предоставлять в департамент архитектуры и городского планирования в течение 14 дней с момента публикации объявления по...

Проект условий на проектирование (4. Paemurru 22)

Свое мнение и возражения по поводу проекта условий на проектирование можете предоставлять в департамент архитектуры и городского планирования в течение 14 дней с момента публикации объявления по...

Департамент окружающей среды сообщает, что принял к рассмотрению ходатайство о выдаче экологического разрешения № T/KL-1026596, поданное Sihtasutus Ida-Viru Investeeringute Agentuur...

Сообщение Департаментa окружающей среды (SA Ida-Viru Investeeringute Agentuur)

Департамент окружающей среды сообщает, что принял к рассмотрению ходатайство о выдаче экологического разрешения № T/KL-1026596, поданное Sihtasutus Ida-Viru Investeeringute Agentuur...

♦ Департамент Архитектуры и Городского Планирования Нарвской Городской Управы сообщает: о принятии и направлении на публичную демонстрацию детальной планировки земельного участка Kangelaste...

Сообщение Департамента архитектуры и городского планирования (Kangelaste pr 37, Hariduse tn 22)

♦ Департамент Архитектуры и Городского Планирования Нарвской Городской Управы сообщает: о принятии и направлении на публичную демонстрацию детальной планировки земельного участка Kangelaste...

Департамент окружающей среды сообщает, что принял к производству Enefit Power AS ходатайство об изменении экологического разрешения № L.KKL.IV-137279.

Сообщение Департаментa окружающей среды (Enefit Power AS)

Департамент окружающей среды сообщает, что принял к производству Enefit Power AS ходатайство об изменении экологического разрешения № L.KKL.IV-137279.

Департамент Архитектуры и Городского планирования Нарвской городской управы сообщает о том, что Государственный Земельный департамент (Riigi Maa-amet) на основании Закона о земельной реформе §...

Сообщение Департамента архитектуры и городского планирования (Parve tänav 1)

Департамент Архитектуры и Городского планирования Нарвской городской управы сообщает о том, что Государственный Земельный департамент (Riigi Maa-amet) на основании Закона о земельной реформе §...

Свое мнение и возражения по поводу проекта условий на проектирование можете предоставлять в департаментархитектуры и городского планирования в течение 14 дней с момента публикации объявления по...

Проект условий на проектирование (A. Puškini tn J13 и J15, Kangelaste põik L1, Kivilinna tn 14)

Свое мнение и возражения по поводу проекта условий на проектирование можете предоставлять в департаментархитектуры и городского планирования в течение 14 дней с момента публикации объявления по...

Свое мнение и возражения по поводу проекта условий на проектирование можете предоставлять в департамент архитектуры и городского планирования в течение 14 дней с момента публикации объявления по...

Проект условий на проектирование (V. Gerassimovi 18a)

Свое мнение и возражения по поводу проекта условий на проектирование можете предоставлять в департамент архитектуры и городского планирования в течение 14 дней с момента публикации объявления по...

Свое мнение и возражения по поводу проекта условий на проектирование можете предоставлять в департамент архитектуры и городского планирования по адресу Peetri plats 5, 20308 Narva linn или на адрес...

Проект условий на проектирование (P. Kerese 38b)

Свое мнение и возражения по поводу проекта условий на проектирование можете предоставлять в департамент архитектуры и городского планирования по адресу Peetri plats 5, 20308 Narva linn или на адрес...

Свое мнение и возражения по поводу проекта условий на проектирование можете предоставлять в департамент архитектуры и городского планирования в течение 14 дней с момента публикации объявления по...

Проект условий на проектирование (Paadi 8a)

Свое мнение и возражения по поводу проекта условий на проектирование можете предоставлять в департамент архитектуры и городского планирования в течение 14 дней с момента публикации объявления по...

Свое мнение и возражения по поводу проекта условий на проектирование можете предоставлять в департамент архитектуры и городского планирования в течение 14 дней с момента публикации объявления по...

Проект условий на проектирование (Päikese 16)

Свое мнение и возражения по поводу проекта условий на проектирование можете предоставлять в департамент архитектуры и городского планирования в течение 14 дней с момента публикации объявления по...

Свое мнение и возражения по поводу проекта условий на проектирование можете предоставлять в департамент архитектуры и городского планирования в течение 14 дней с момента публикации объявления по...

Проект условий на проектирование (Kivilinna 2e)

Свое мнение и возражения по поводу проекта условий на проектирование можете предоставлять в департамент архитектуры и городского планирования в течение 14 дней с момента публикации объявления по...

Департамент архитектуры и городского планирования сообщает об инициировании составления детальной планировки земельного участка основной школы Soldina решением № 40 Нарвского городского собрания от...

Инициирование составления детальной планировки земельного участка основной школы Солдина

Департамент архитектуры и городского планирования сообщает об инициировании составления детальной планировки земельного участка основной школы Soldina решением № 40 Нарвского городского собрания от...

Свое мнение и возражения по поводу проекта условий на проектирование можете предоставлять в департамент архитектуры и городского планирования в течение 14 дней с момента публикации объявления по...

Проект условий на проектирование (A. Puškini tn 56: автоматическая заправочная станция)

Свое мнение и возражения по поводу проекта условий на проектирование можете предоставлять в департамент архитектуры и городского планирования в течение 14 дней с момента публикации объявления по...

Свое мнение и возражения по поводу проекта условий на проектирование можете предоставлять в департамент архитектуры и городского планирования в течение 14 дней с момента публикации объявления по...

Проект условий на проектирование (Tehase tn: строительство подземной линии газообразного водорода)

Свое мнение и возражения по поводу проекта условий на проектирование можете предоставлять в департамент архитектуры и городского планирования в течение 14 дней с момента публикации объявления по...

Свое мнение и возражения по поводу проекта условий на проектирование можете предоставлять в департамент архитектуры и городского планирования в течение 14 дней с момента публикации объявления по...

Проект условий на проектирование (Kulgu 15)

Свое мнение и возражения по поводу проекта условий на проектирование можете предоставлять в департамент архитектуры и городского планирования в течение 14 дней с момента публикации объявления по...

Ознакомиться с ходатайством и другими связанными с ним документами можно в информационной системе решений в области окружающей среды KOTKAS .

Сообщение Департаментa окружающей среды (Tiigi tn 2m и 2c)

Ознакомиться с ходатайством и другими связанными с ним документами можно в информационной системе решений в области окружающей среды KOTKAS .

Департамент Архитектуры и Городского Планирования Нарвской Городской Управы сообщает об отказе от инициирования составления детальной планировки участка Tallinna mnt 71 решением № 37 ...

Сообщение об отказе от инициирования составления детальной планировки участка Tallinna mnt 71

Департамент Архитектуры и Городского Планирования Нарвской Городской Управы сообщает об отказе от инициирования составления детальной планировки участка Tallinna mnt 71 решением № 37 ...

Свое мнение и возражения по поводу проекта условий на проектирование можете предоставлять в департамент архитектуры и городского планирования в течение 14 дней с момента публикации объявления по...

Проект условий на проектирование (Rahu 11a)

Свое мнение и возражения по поводу проекта условий на проектирование можете предоставлять в департамент архитектуры и городского планирования в течение 14 дней с момента публикации объявления по...

Департамент архитектуры и городского планирования сообщает об организации публичной демонстрации эскиза детальной планировки земельного участка Kreenholmi tn 54a в период с 23 сентября по 6 октября...

Публичная демонстрация эскизного решения детальной планировки (Kreenholmi tn 54a)

Департамент архитектуры и городского планирования сообщает об организации публичной демонстрации эскиза детальной планировки земельного участка Kreenholmi tn 54a в период с 23 сентября по 6 октября...

Департамент архитектуры и городского планирования сообщает об организации публичной демонстрации детальной планировки Ратуши и прилегающей территории с 23 сентября по 6 октября 2024.

Публичная демонстрация детальной планировки Ратуши и прилегающей территории

Департамент архитектуры и городского планирования сообщает об организации публичной демонстрации детальной планировки Ратуши и прилегающей территории с 23 сентября по 6 октября 2024.

Предприятие ходатайствует об экологическом разрешении для выведения загрязняющих веществ из стационарных источников выбросов в наружный воздух, находящегося на участке по адресу Kulgu 5...

Сообщение Департаментa окружающей среды (Kulgu tn 5)

Предприятие ходатайствует об экологическом разрешении для выведения загрязняющих веществ из стационарных источников выбросов в наружный воздух, находящегося на участке по адресу Kulgu 5...

Свое мнение и возражения по поводу проекта условий на проектирование можете предоставлять в департамент архитектуры и городского планирования в течение 14 дней с момента публикации объявления по...

Проект условий на проектирование (4. Paemurru 22)

Свое мнение и возражения по поводу проекта условий на проектирование можете предоставлять в департамент архитектуры и городского планирования в течение 14 дней с момента публикации объявления по...

Ознакомиться с ходатайством об изменении разрешения на окружающую среду и другими связанными с ним документами можно в информационной системе решений в области окружающей среды KOTKAS.

Сообщение Департаментa окружающей среды (AS Narva Vesi)

Ознакомиться с ходатайством об изменении разрешения на окружающую среду и другими связанными с ним документами можно в информационной системе решений в области окружающей среды KOTKAS.

Департамент Архитектуры и Городского Планирования Нарвской Городской Управы сообщает: 1. О признании частично недействительной детальной планировки, установленной решением № 127 Нарвского...

Сообщение Департамента архитектуры и городского планирования

Департамент Архитектуры и Городского Планирования Нарвской Городской Управы сообщает: 1. О признании частично недействительной детальной планировки, установленной решением № 127 Нарвского...

Публичная демонстрация Общей планировки прошла в период с 15 апреля по 16 мая 2024 года. В это время все жители города могли высказать свое мнение о представленных в планировке решениях.

Итоги публичной демонстраций

Публичная демонстрация Общей планировки прошла в период с 15 апреля по 16 мая 2024 года. В это время все жители города могли высказать свое мнение о представленных в планировке решениях.

Департамент окружающей среды сообщает, что принял к рассмотрению первичное ходатайство об экологическом разрешении, поданное NPM Narva OU (регистрационный код 16493223; адрес: ул. Kesk 2/1,...

Сообщение Департаментa окружающей среды (Tehase tn 31, 33, 39, 41, 43)

Департамент окружающей среды сообщает, что принял к рассмотрению первичное ходатайство об экологическом разрешении, поданное NPM Narva OU (регистрационный код 16493223; адрес: ул. Kesk 2/1,...

Свое мнение и возражения по поводу проекта условий на проектирование можете предоставлять в департамент архитектуры и городского планирования в течение 14 дней с момента публикации объявления по...

Проект условий на проектирование (Vestervalli tn 17)

Свое мнение и возражения по поводу проекта условий на проектирование можете предоставлять в департамент архитектуры и городского планирования в течение 14 дней с момента публикации объявления по...

Свое мнение и возражения по поводу проекта условий на проектирование можете предоставлять в департамент архитектуры и городского планирования в течение 14 дней с момента публикации объявления по...

Проект условий на проектирование (Päevalille tn 28)

Свое мнение и возражения по поводу проекта условий на проектирование можете предоставлять в департамент архитектуры и городского планирования в течение 14 дней с момента публикации объявления по...

► 06.06.2024: Департамент архитектуры и городского планирования сообщает об организации публичной демонстрации эскиза детальной планировки земельного участка Narva metskond 103 и прилегающей...

25.06.-25.07.2024 публичная демонстрация эскизного решения детальной планировки

► 06.06.2024: Департамент архитектуры и городского планирования сообщает об организации публичной демонстрации эскиза детальной планировки земельного участка Narva metskond 103 и прилегающей...

Свое мнение и возражения по поводу проекта условий на проектирование можете предоставлять в департамент архитектуры и городского планирования в течение 14 дней с момента публикации объявления по...

Проект условий на проектирование (Tähe tn 3)

Свое мнение и возражения по поводу проекта условий на проектирование можете предоставлять в департамент архитектуры и городского планирования в течение 14 дней с момента публикации объявления по...

Свое мнение и возражения по поводу проекта условий на проектирование можете предоставлять в департамент архитектуры и городского планирования в течение 14 дней с момента публикации объявления по...

Проект условий на проектирование (Tehase tn 47, 51)

Свое мнение и возражения по поводу проекта условий на проектирование можете предоставлять в департамент архитектуры и городского планирования в течение 14 дней с момента публикации объявления по...

Свое мнение и возражения по поводу проекта условий на проектирование можете предоставлять в департамент архитектуры и городского планирования в течение 14 дней с момента публикации объявления по...

Проект условий на проектирование (Jõesuu tn 52)

Свое мнение и возражения по поводу проекта условий на проектирование можете предоставлять в департамент архитектуры и городского планирования в течение 14 дней с момента публикации объявления по...

Департамент Архитектуры и Городского Планирования Нарвской Городской Управы сообщает об организации публичной демонстрации эскиза детальной планировки земельного участка Narva metskond 103 и...

Сообщение Департамента архитектуры и городского планирования (Narva metskond 103)

Департамент Архитектуры и Городского Планирования Нарвской Городской Управы сообщает об организации публичной демонстрации эскиза детальной планировки земельного участка Narva metskond 103 и...

Свое мнение и возражения по поводу проекта условий на проектирование можете предоставлять в департамент архитектуры и городского планирования по адресу Peetri plats 5, 20308 Narva linn или на адрес...

Проект условий на проектирование (Madise tn 20)

Свое мнение и возражения по поводу проекта условий на проектирование можете предоставлять в департамент архитектуры и городского планирования по адресу Peetri plats 5, 20308 Narva linn или на адрес...

Департамент Архитектуры и Городского Планирования Нарвской Городской Управы сообщает: 1. Об организации публичной демонстрации эскиза детальной планировки земельного участка Kangelaste...

Публичные обсуждения: 10.06.2024 Kangelaste 37 и 13.06.2024 общая планировка

Департамент Архитектуры и Городского Планирования Нарвской Городской Управы сообщает: 1. Об организации публичной демонстрации эскиза детальной планировки земельного участка Kangelaste...

Свое мнение и возражения по поводу проекта условий на проектирование можете предоставлять в департамент архитектуры и городского планирования в течение 14 дней с момента публикации объявления по...

Проект условий на проектирование (Kulgusadama tee 23)

Свое мнение и возражения по поводу проекта условий на проектирование можете предоставлять в департамент архитектуры и городского планирования в течение 14 дней с момента публикации объявления по...

Нарвская Городская Управа приглашает нарвитян и всех заинтересованных лиц на семинар, посвящённом новой Общей планировке города Нарва. Семинар пройдёт 18 апреля 2024 года в 15:00 в Нарвском...

18.04.2024 cеминар - общая планировка

Нарвская Городская Управа приглашает нарвитян и всех заинтересованных лиц на семинар, посвящённом новой Общей планировке города Нарва. Семинар пройдёт 18 апреля 2024 года в 15:00 в Нарвском...

21 марта 2024 года Нарвское городское собрание приняло решением № 15 общую планировку города Нарвы. В соответствии со статьей 87 Закона о планировании Городская управа Нарвы с 15 апреля по 16...

Публичная демонстрация общей планировки (генерального плана) города Нарвы и общественное обсуждение результатов публичной демонстрации

21 марта 2024 года Нарвское городское собрание приняло решением № 15 общую планировку города Нарвы. В соответствии со статьей 87 Закона о планировании Городская управа Нарвы с 15 апреля по 16...

Свое мнение и возражения по поводу проекта условий на проектирование можете предоставлять в департамент Архитектуры и городского планирования в течение 14 дней с момента публикации объявления по...

Проект условий на проектирование (Väikesaare tn 9)

Свое мнение и возражения по поводу проекта условий на проектирование можете предоставлять в департамент Архитектуры и городского планирования в течение 14 дней с момента публикации объявления по...

Департамент Архитектуры и Городского планирования Нарвской Городской управы опубликовывает проект условий на проектирование для возведения вспомогательного здания обслуживающего спортивное...

Проект условий на проектирование (Äkkeküla tervisespordikeskus)

Департамент Архитектуры и Городского планирования Нарвской Городской управы опубликовывает проект условий на проектирование для возведения вспомогательного здания обслуживающего спортивное...