Projekteerimistingimuste eelnõu (Vaivara 4 ja 8)

Narva Linnavalitsuse Arhitektuuri- ja Linnaplaneerimise Amet avalikustab projekteerimistingimuste eelnõu töökoja püstitamiseks Vaivara tn 4 ja 8 kinnistul.

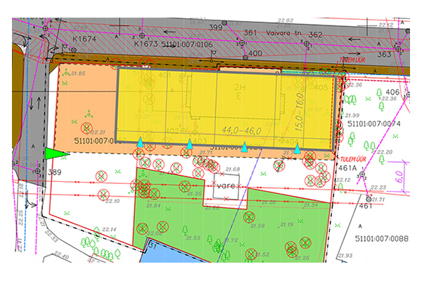
Maa-alal kehtib Narva Linnavolikogu 14.08.2014. a otsusega nr 94 kehtestatud Vaivara tn 4, Vaivara tn 8 ja lähiala detailplaneering. Lähtudes projekteerimistingimuste taotlusest on ilmnenud uusi asjaolusid, mille tõttu peab detailplaneeringujärgset lahendust täpsustama hoone kasutamise otstarbe ning arhitektuuriliste, ehituslike või kujunduslike tingimuste osas. Vastavalt taotluses toodud informatsioonile Vaivara tn 4, 8 krundile soovitakse toitlustushoone (restoran) asemel püstitada töökoda. Seega soovitakse muuta hoone kasutamise otstarvet ning arhitektuurilisi tingimusi töökoja vajaduste põhiseks võrreldes detailplaneeringu lahendusega.

Projekteerimistingimuste eelnõu kohta võib Narva Linnavalitsuse Arhitektuuri- ja Linnaplaneerimise Ametile oma arvamuse ja/või vastuväiteid esitada 14 päeva jooksul kuulutuse avaldamisest postiaadressile Peetri plats 5, 20308 Narva linn või e-posti aadressile narvaplan@narva.ee.
Avatud menetlus kestab kuni 6. juunini 2025. a.

Haldusmenetluse seaduse § 50 alusel teeb Narva Linnavalitsuse Arhitektuuri- ja Linnaplaneerimise Amet ettepaneku asja arutamiseks ilma avalikku istungit läbi viimata. Õigusakti andmise võib otsustada ilma avalikul istungil arutamiseta, kui tähtaja jooksul, st  6. juunini 2025. a, ei ole ettepanekuid või vastuväiteid esitatud ja/või menetlusosalised ei ole väljendanud soovi asja arutamiseks avalikul istungil.

Projekteerimistingimuste eelnõu tervikteksti, detailplaneeringu põhijoonise ja asendiskeemiga saab tutvuda Narva Linnavalitsuse Arhitektuuri- ja Linnaplaneerimise Ameti kodulehel www.narvaplan.ee, Narva linna kodulehel või Peetri plats 5 hoone fuajees, eelnevalt helistades telefonil 58470224.

Aleksandr Pedari
arhitekt
Narva Linnavalitsuse Arhitektuuri- ja Linnaplaneerimise Amet
aleksandr.pedari@narva.ee