Narva Linnavalitsuse Arhitektuuri- ja Linnaplaneerimise Amet teatab Narva Linnavolikogu 04.10.2012 otsusega nr 118 "Narva Tööstuspargi detailplaneeringu kehtestamine" kehtestatud...

Narva Tööstuspargi detailplaneeringu osalisest kehtetuks tunnistamisest Elektrijaama tee 3 krundi (Pos 35) osas

Narva Linnavalitsuse Arhitektuuri- ja Linnaplaneerimise Amet teatab Narva Linnavolikogu 04.10.2012 otsusega nr 118 "Narva Tööstuspargi detailplaneeringu kehtestamine" kehtestatud...

Narva Linnavalitsuse Arhitektuuri- ja Linnaplaneerimise Amet teatab Narva Linnavalitsuse 22.04.2026 korraldusega nr 243-k Narva metskond 103 ja selle lähiala detailplaneeringu vastuvõtmisest...

Narva metskond 103 ja selle lähiala detailplaneeringu vastuvõtmisest ning avaliku väljapaneku korraldamisest

Narva Linnavalitsuse Arhitektuuri- ja Linnaplaneerimise Amet teatab Narva Linnavalitsuse 22.04.2026 korraldusega nr 243-k Narva metskond 103 ja selle lähiala detailplaneeringu vastuvõtmisest...

Narva on rikkaliku ja vastuolulise ajaloo ning mitmekesise kultuuripärandiga linn, kus kohtuvad erinevad ajastud, kultuurid ja tänapäev, pakkudes igapäevaselt intrigeerivaid ja lahendamist vajavaid...

Narva Linnavalitsuse Arhitektuuri- Ja Linnaplaneerimise Amet kutsub oma meeskonda uut liiget muinsuskaitse vaneminspektori ametikohale

Narva on rikkaliku ja vastuolulise ajaloo ning mitmekesise kultuuripärandiga linn, kus kohtuvad erinevad ajastud, kultuurid ja tänapäev, pakkudes igapäevaselt intrigeerivaid ja lahendamist vajavaid...

Narva Linnavalitsuse Arhitektuuri- ja Linnaplaneerimise Amet avalikustab „Taime tn 3 üksikelamu püstitamine ilma detailplaneeringut koostamata„ projekteerimistingimuste eelnõu.   ...

Projekteerimistingimuste eelnõu (Taime tn 3)

Narva Linnavalitsuse Arhitektuuri- ja Linnaplaneerimise Amet avalikustab „Taime tn 3 üksikelamu püstitamine ilma detailplaneeringut koostamata„ projekteerimistingimuste eelnõu.   ...

Projekteerimistingimuste eelnõu kohta võite esitada Arhitektuuri- ja Linnaplaneerimise Ametile oma arvamuse ja vastuväited 14 päeva jooksul kuulutuse avaldamisest postiaadressile Peetri plats 5,...

Projekteerimistingimuste eelnõu (Toivo 4)

Projekteerimistingimuste eelnõu kohta võite esitada Arhitektuuri- ja Linnaplaneerimise Ametile oma arvamuse ja vastuväited 14 päeva jooksul kuulutuse avaldamisest postiaadressile Peetri plats 5,...

Projekteerimistingimuste eelnõu kohta võite esitada Arhitektuuri- ja Linnaplaneerimise Ametile oma arvamuse ja vastuväited 14 päeva jooksul kuulutuse avaldamisest postiaadressile Peetri plats 5,...

Projekteerimistingimuste eelnõu (Oru 53)

Projekteerimistingimuste eelnõu kohta võite esitada Arhitektuuri- ja Linnaplaneerimise Ametile oma arvamuse ja vastuväited 14 päeva jooksul kuulutuse avaldamisest postiaadressile Peetri plats 5,...

Projekteerimistingimuste eelnõu kohta võite esitada Arhitektuuri- ja Linnaplaneerimise Ametile oma arvamuse ja vastuväited 14 päeva jooksul kuulutuse avaldamisest postiaadressile Peetri plats 5,...

Projekteerimistingimuste eelnõu (Jõesuu 13)

Projekteerimistingimuste eelnõu kohta võite esitada Arhitektuuri- ja Linnaplaneerimise Ametile oma arvamuse ja vastuväited 14 päeva jooksul kuulutuse avaldamisest postiaadressile Peetri plats 5,...

Projekteerimistingimuste eelnõu kohta võite esitada Arhitektuuri- ja Linnaplaneerimise Ametile oma arvamuse ja vastuväited 14 päeva jooksul kuulutuse avaldamisest postiaadressile Peetri plats 5,...

Projekteerimistingimuste eelnõu (kaugküttetoru rajamine)

Projekteerimistingimuste eelnõu kohta võite esitada Arhitektuuri- ja Linnaplaneerimise Ametile oma arvamuse ja vastuväited 14 päeva jooksul kuulutuse avaldamisest postiaadressile Peetri plats 5,...

Projekteerimistingimuste eelnõu kohta võite esitada Arhitektuuri- ja Linnaplaneerimise Ametile oma arvamuse ja vastuväited 14 päeva jooksul kuulutuse avaldamisest postiaadressile Peetri plats 5,...

Projekteerimistingimuste eelnõu (sideliinide rajamine)

Projekteerimistingimuste eelnõu kohta võite esitada Arhitektuuri- ja Linnaplaneerimise Ametile oma arvamuse ja vastuväited 14 päeva jooksul kuulutuse avaldamisest postiaadressile Peetri plats 5,...

Eelnõu kohta võite esitada Arhitektuuri- ja Linnaplaneerimise Ametile oma arvamuse ja vastuväited 14 päeva jooksul alates kuulutuse avaldamisest postiaadressile Peetri plats 5, 20308 Narva linn või...

Projekteerimistingimuste eelnõu (Soldina 19)

Eelnõu kohta võite esitada Arhitektuuri- ja Linnaplaneerimise Ametile oma arvamuse ja vastuväited 14 päeva jooksul alates kuulutuse avaldamisest postiaadressile Peetri plats 5, 20308 Narva linn või...

Narva Linnavalitsuse Arhitektuuri- ja Linnaplaneerimise Amet kutsub aiandusühistute esindajaid infopäevale.

20.04.2026 infopäev aiandusühistute esindajatele

Narva Linnavalitsuse Arhitektuuri- ja Linnaplaneerimise Amet kutsub aiandusühistute esindajaid infopäevale.

Projekteerimistingimuste eelnõu kohta võite esitada Arhitektuuri- ja Linnaplaneerimise Ametile oma arvamuse ja vastuväited 14 päeva jooksul kuulutuse avaldamisest postiaadressile Peetri plats 5,...

Projekteerimistingimuste eelnõu (sideliinide rajamine)

Projekteerimistingimuste eelnõu kohta võite esitada Arhitektuuri- ja Linnaplaneerimise Ametile oma arvamuse ja vastuväited 14 päeva jooksul kuulutuse avaldamisest postiaadressile Peetri plats 5,...

Ettepanekud või vastuväited palun esitada e-posti aadressile nimekomisjon@narva.ee kuni 30.03.2026.

Ühissõidukipeatuste nimede kinnitamine

Ettepanekud või vastuväited palun esitada e-posti aadressile nimekomisjon@narva.ee kuni 30.03.2026.

Projekteerimistingimuste eelnõu kohta võite esitada Arhitektuuri- ja Linnaplaneerimise Ametile oma arvamuse ja vastuväited 14 päeva jooksul kuulutuse avaldamisest postiaadressile Peetri plats 5,...

Projekteerimistingimuste eelnõu (Oru 22)

Projekteerimistingimuste eelnõu kohta võite esitada Arhitektuuri- ja Linnaplaneerimise Ametile oma arvamuse ja vastuväited 14 päeva jooksul kuulutuse avaldamisest postiaadressile Peetri plats 5,...

Projekteerimistingimuste eelnõu kohta võite esitada Arhitektuuri- ja Linnaplaneerimise Ametile oma arvamuse ja vastuväited 14 päeva jooksul kuulutuse avaldamisest postiaadressile Peetri plats 5,...

Projekteerimistingimuste eelnõu (Väina 3)

Projekteerimistingimuste eelnõu kohta võite esitada Arhitektuuri- ja Linnaplaneerimise Ametile oma arvamuse ja vastuväited 14 päeva jooksul kuulutuse avaldamisest postiaadressile Peetri plats 5,...

Arhitektuuri- ja Linnaplaneerimise Amet teatab Soldina põhikooli maa-ala detailplaneeringu kehtestamisest Narva Linnavolikogu 19.02.2026 otsusega nr 23.

Teade Soldina põhikooli maa-ala detailplaneeringu kehtestamisest

Arhitektuuri- ja Linnaplaneerimise Amet teatab Soldina põhikooli maa-ala detailplaneeringu kehtestamisest Narva Linnavolikogu 19.02.2026 otsusega nr 23.

Eelnõu kohta võite esitada Arhitektuuri- ja Linnaplaneerimise Ametile oma arvamuse ja vastuväited 14 päeva jooksul alates kuulutuse avaldamisest postiaadressile Peetri plats 5, 20308 Narva linn või...

Projekteerimistingimuste eelnõu (Tähe 3)

Eelnõu kohta võite esitada Arhitektuuri- ja Linnaplaneerimise Ametile oma arvamuse ja vastuväited 14 päeva jooksul alates kuulutuse avaldamisest postiaadressile Peetri plats 5, 20308 Narva linn või...

Ettepanekud või vastuväited palun esitada meiliaadressile nimekomisjon@narva.ee kuni 05.03.2026.

Raudtee tänava liikluspinna ruumikuju muutmine ning Sillavahe tänava kohanime määramine

Ettepanekud või vastuväited palun esitada meiliaadressile nimekomisjon@narva.ee kuni 05.03.2026.

Eelnõu kohta võite esitada Arhitektuuri- ja Linnaplaneerimise Ametile oma arvamuse ja vastuväited 14 päeva jooksul alates kuulutuse avaldamisest postiaadressile Peetri plats 5, 20308 Narva linn või...

Projekteerimistingimuste eelnõu (Taime 15)

Eelnõu kohta võite esitada Arhitektuuri- ja Linnaplaneerimise Ametile oma arvamuse ja vastuväited 14 päeva jooksul alates kuulutuse avaldamisest postiaadressile Peetri plats 5, 20308 Narva linn või...

Üldplaneering hõlmab kogu linna territooriumi (pindala 84,54 km², ilma veealadeta 68,98 km²). Planeeringuala piiriks on Narva linna piir.

Arhitektuuri- ja Linnaplaneerimise Amet teatab üldplaneeringu 2035+ kehtestamisest

Üldplaneering hõlmab kogu linna territooriumi (pindala 84,54 km², ilma veealadeta 68,98 km²). Planeeringuala piiriks on Narva linna piir.

Arhitektuuri- ja Linnaplaneerimise Amet avalikustab projekteerimistingimuste eelnõu "Äkkeküla tee 12 spordihalli püstitamine täpsustades kehtivat detailplaneeringut".

Projekteerimistingimuste eelnõu (Äkkeküla tee 12)

Arhitektuuri- ja Linnaplaneerimise Amet avalikustab projekteerimistingimuste eelnõu "Äkkeküla tee 12 spordihalli püstitamine täpsustades kehtivat detailplaneeringut".

Narva Linnavalitsuse Linnamajandusamet koostöös Narva Linna Arenduse ja Ökonoomika Ametiga esitas tähtaegselt 30.12.2025 põhitaotluse toetuse saamiseks  Stockholmi platsi 2. etapi...

Stockholmi platsi 2. etapi ehitamise toetamiseks põhitaotlus on esitatud

Narva Linnavalitsuse Linnamajandusamet koostöös Narva Linna Arenduse ja Ökonoomika Ametiga esitas tähtaegselt 30.12.2025 põhitaotluse toetuse saamiseks  Stockholmi platsi 2. etapi...

Detailplaneeringu avalik väljapanek toimub 14.-27.01.2026. Samuti korraldab amet Soldina põhikooli maa-ala detailplaneeringu avaliku arutelu 27.01.2026 kl 16.00 linnavalitsuse konverentsisaalis...

Soldina põhikooli maa-ala detailplaneering

Detailplaneeringu avalik väljapanek toimub 14.-27.01.2026. Samuti korraldab amet Soldina põhikooli maa-ala detailplaneeringu avaliku arutelu 27.01.2026 kl 16.00 linnavalitsuse konverentsisaalis...

Projekteerimistingimuste eelnõu kohta võite esitada Arhitektuuri- ja Linnaplaneerimise Ametile oma arvamuse ja vastuväited 14 päeva jooksul kuulutuse avaldamisest postiaadressile Peetri plats 5,...

Projekteerimistingimuste eelnõu (Pilviku 3)

Projekteerimistingimuste eelnõu kohta võite esitada Arhitektuuri- ja Linnaplaneerimise Ametile oma arvamuse ja vastuväited 14 päeva jooksul kuulutuse avaldamisest postiaadressile Peetri plats 5,...

Projekteerimistingimuste eelnõu kohta võite esitada Arhitektuuri- ja Linnaplaneerimise Ametile oma arvamuse ja vastuväited 14 päeva jooksul kuulutuse avaldamisest postiaadressile Peetri plats 5,...

Projekteerimistingimuste eelnõu (Lehe 29)

Projekteerimistingimuste eelnõu kohta võite esitada Arhitektuuri- ja Linnaplaneerimise Ametile oma arvamuse ja vastuväited 14 päeva jooksul kuulutuse avaldamisest postiaadressile Peetri plats 5,...

Projekteerimistingimuste eelnõu kohta võite esitada Arhitektuuri- ja Linnaplaneerimise Ametile oma arvamuse ja vastuväited 14 päeva jooksul kuulutuse avaldamisest postiaadressile Peetri plats 5,...

Projekteerimistingimuste eelnõu (Aroonia 21)

Projekteerimistingimuste eelnõu kohta võite esitada Arhitektuuri- ja Linnaplaneerimise Ametile oma arvamuse ja vastuväited 14 päeva jooksul kuulutuse avaldamisest postiaadressile Peetri plats 5,...

Keskkonnaamet teatab, et on võtnud menetlusse Enefit Power OÜ keskkonnakompleksloa nr L.KKL.IV-137279 (Balti elektrijaam) muutmise taotluse.

Teade (Balti elektrijaam)

Keskkonnaamet teatab, et on võtnud menetlusse Enefit Power OÜ keskkonnakompleksloa nr L.KKL.IV-137279 (Balti elektrijaam) muutmise taotluse.

Detailplaneeringu avalik väljapanek toimub 12.-28.12.2025. Arvamusi planeeringu kohta saab esitada Arhitektuuri- ja Linnaplaneerimise Ameti postiaadressile Peetri plats 5, 20308 Narva linn või...

Kadastiku tänav 53 ja 53a detailplaneering

Detailplaneeringu avalik väljapanek toimub 12.-28.12.2025. Arvamusi planeeringu kohta saab esitada Arhitektuuri- ja Linnaplaneerimise Ameti postiaadressile Peetri plats 5, 20308 Narva linn või...

Eelnõu kohta võite esitada Arhitektuuri- ja Linnaplaneerimise Ametile oma arvamuse ja vastuväited 14 päeva jooksul alates kuulutuse avaldamisest postiaadressile Peetri plats 5, 20308 Narva linn või...

Projekteerimistingimuste eelnõu (3. Paemurru 15a)

Eelnõu kohta võite esitada Arhitektuuri- ja Linnaplaneerimise Ametile oma arvamuse ja vastuväited 14 päeva jooksul alates kuulutuse avaldamisest postiaadressile Peetri plats 5, 20308 Narva linn või...

Projekteerimistingimuste eelnõu kohta võite esitada Arhitektuuri- ja Linnaplaneerimise Ametile oma arvamuse ja vastuväited 14 päeva jooksul kuulutuse avaldamisest postiaadressile Peetri plats 5,...

Projekteerimistingimuste eelnõu (Nirgi 22)

Projekteerimistingimuste eelnõu kohta võite esitada Arhitektuuri- ja Linnaplaneerimise Ametile oma arvamuse ja vastuväited 14 päeva jooksul kuulutuse avaldamisest postiaadressile Peetri plats 5,...

Projekteerimistingimuste eelnõu kohta võite esitada Arhitektuuri- ja Linnaplaneerimise Ametile oma arvamuse ja vastuväited 14 päeva jooksul kuulutuse avaldamisest postiaadressile Peetri plats 5,...

Projekteerimistingimuste eelnõu (Võsa 13)

Projekteerimistingimuste eelnõu kohta võite esitada Arhitektuuri- ja Linnaplaneerimise Ametile oma arvamuse ja vastuväited 14 päeva jooksul kuulutuse avaldamisest postiaadressile Peetri plats 5,...

Projekteerimistingimuste eelnõu kohta võite esitada Arhitektuuri- ja Linnaplaneerimise Ametile oma arvamuse ja vastuväited postiaadressile Peetri plats 5, 20308 Narva linn või e-posti aadressile...

Projekteerimistingimuste eelnõu (Elektrijaama tee 29)

Projekteerimistingimuste eelnõu kohta võite esitada Arhitektuuri- ja Linnaplaneerimise Ametile oma arvamuse ja vastuväited postiaadressile Peetri plats 5, 20308 Narva linn või e-posti aadressile...

Projekti raames "Narva pilootalal kuivendussüsteemi (sh mahuti ja torustik) projekteerimine” projekti ekspertiisi ja kuivendussüsteemi ja tuletõrje veevõtukoha ehitiste auditi teostamiseks.

Hanketeade nr 41 /lisatud 07.10.2025/

Projekti raames "Narva pilootalal kuivendussüsteemi (sh mahuti ja torustik) projekteerimine” projekti ekspertiisi ja kuivendussüsteemi ja tuletõrje veevõtukoha ehitiste auditi teostamiseks.

Arhitektuuri- ja Linnaplaneerimise Amet teatab: 1. Madise tn 26 ja Madise tn 26a maa-ala detailplaneeringu koostamise algatamisest...

Teated detailplaneeringutest

Arhitektuuri- ja Linnaplaneerimise Amet teatab: 1. Madise tn 26 ja Madise tn 26a maa-ala detailplaneeringu koostamise algatamisest...

Arvamusi planeeringu kohta saab esitada Arhitektuuri- ja Linnaplaneerimise Ameti postiaadressile Peetri plats 5, 20308 Narva linn või e-posti aadressile narvaplan@narva.ee.

13.-28.09.2025 Soldina põhikooli maa-ala detailplaneeringu eskiisi avalik väljapanek

Arvamusi planeeringu kohta saab esitada Arhitektuuri- ja Linnaplaneerimise Ameti postiaadressile Peetri plats 5, 20308 Narva linn või e-posti aadressile narvaplan@narva.ee.

Arhitektuuri- ja Linnaplaneerimise Amet otsib oma kollektiivi arhitekti, kelle töö põhieesmärk on kaasa mõelda ja osaleda linnaruumi parima arengu suunamises. Seda nii planeeringutele arhitektina...

Arhitektuuri- ja Linnaplaneerimise Amet otsib oma meeskonda tegusat arhitekti

Arhitektuuri- ja Linnaplaneerimise Amet otsib oma kollektiivi arhitekti, kelle töö põhieesmärk on kaasa mõelda ja osaleda linnaruumi parima arengu suunamises. Seda nii planeeringutele arhitektina...

Amet on menetlusse võtnud Aiandusühistu SVETOFOR (registrikood 80021329) poolt 23.07.2025 esitatud keskkonnaloa nr KL-512434 taotluse nr T-KL/1029131.

Keskkonnameti teade (AÜ Svetofor)

Amet on menetlusse võtnud Aiandusühistu SVETOFOR (registrikood 80021329) poolt 23.07.2025 esitatud keskkonnaloa nr KL-512434 taotluse nr T-KL/1029131.

Narva Linnavalitsuse Arhitektuuri- ja Linnaplaneerimise Amet küsib hinnapakkumist Life LATESTadapt projekti raames Narva pilootalal tuletõrje veevõtukoha katsetamiseks.

Hanketeade nr 35 /lisatud 25.08.2025/

Narva Linnavalitsuse Arhitektuuri- ja Linnaplaneerimise Amet küsib hinnapakkumist Life LATESTadapt projekti raames Narva pilootalal tuletõrje veevõtukoha katsetamiseks.

Arhitektuuri- ja Linnaplaneerimise Amet otsib oma kollektiivi arhitekti, kelle töö põhieesmärk on kaasa mõelda ja osaleda linnaruumi parima arengu suunamises. Seda nii planeeringutele arhitektina...

Arhitektuuri- ja Linnaplaneerimise Amet otsib oma meeskonda tegusat arhitekti

Arhitektuuri- ja Linnaplaneerimise Amet otsib oma kollektiivi arhitekti, kelle töö põhieesmärk on kaasa mõelda ja osaleda linnaruumi parima arengu suunamises. Seda nii planeeringutele arhitektina...

Kudrukülas aiandusühistu Elektron juures alustati töödega, mille eesmärk on katsetada pilootlahendust sademevee kestlikuks majandamiseks.

Pilootprojekti LIFE LATESTadapt raames algasid Kudruküla kandis ehitustööd

Kudrukülas aiandusühistu Elektron juures alustati töödega, mille eesmärk on katsetada pilootlahendust sademevee kestlikuks majandamiseks.

Avalik arutelu toimub 11.09.2025 kl 16.00 linnavalitsuse konverentsisaalis (Peetri plats 5).

Rüütli tänava ajaloolise kvartali ja selle lähiala detailplaneering

Avalik arutelu toimub 11.09.2025 kl 16.00 linnavalitsuse konverentsisaalis (Peetri plats 5).

Selgunud on 2025. aastal Narva kunstiresidentuuri linnainstallatsiooni residentuuriprogrammi valitud kunstnik ja tema ideekavand. Võistluskutsele vastas enneolematult suur hulk kunstnike üle...

Narva avaliku ruumi installatsioon 2025

Selgunud on 2025. aastal Narva kunstiresidentuuri linnainstallatsiooni residentuuriprogrammi valitud kunstnik ja tema ideekavand. Võistluskutsele vastas enneolematult suur hulk kunstnike üle...

Narva Linnavalitsuse Arhitektuuri- ja Linnaplaneerimise Amet avalikustab „2. Jõesuu tn 21 väikeelamu laiendamine ilma detailplaneeringut koostamata„ projekteerimistingimuste eelnõu....

Teade 2.Jõesuu tn 21 väikeelamu laiendamist

Narva Linnavalitsuse Arhitektuuri- ja Linnaplaneerimise Amet avalikustab „2. Jõesuu tn 21 väikeelamu laiendamine ilma detailplaneeringut koostamata„ projekteerimistingimuste eelnõu....

Narva Linnavalitsuse Arhitektuuri- ja Linnaplaneerimise Amet teatab Elektrijaama tee 50, Elektrijaama tee 90 ja lähiala detailplaneeringu eelnõu/eskiisi avaliku väljapaneku korraldamisest alates...

Teade Elektrijaama tee 50, Elektrijaama tee 90 ja lähiala detailplaneeringust

Narva Linnavalitsuse Arhitektuuri- ja Linnaplaneerimise Amet teatab Elektrijaama tee 50, Elektrijaama tee 90 ja lähiala detailplaneeringu eelnõu/eskiisi avaliku väljapaneku korraldamisest alates...

Arhitektuuri- ja Linnaplaneerimise Amet teatab Kreenholmi tn 54a maa-ala detailplaneeringu kehtestamisest Narva Linnavolikogu 19.06.2025 otsusega nr 43.

Teade Kreenholmi 54a maa-ala detailplaneeringust

Arhitektuuri- ja Linnaplaneerimise Amet teatab Kreenholmi tn 54a maa-ala detailplaneeringu kehtestamisest Narva Linnavolikogu 19.06.2025 otsusega nr 43.

Projekteerimistingimuste eelnõu kohta võite esitada Arhitektuuri- ja Linnaplaneerimise Ametile oma arvamuse ja vastuväited 14 päeva jooksul kuulutuse avaldamisest postiaadressile Peetri plats 5,...

Projekteerimistingimuste eelnõu (Rõõmu 28)

Projekteerimistingimuste eelnõu kohta võite esitada Arhitektuuri- ja Linnaplaneerimise Ametile oma arvamuse ja vastuväited 14 päeva jooksul kuulutuse avaldamisest postiaadressile Peetri plats 5,...

Kõigil huvitatutel on viimane võimalus eeltoodud teemadega tutvumiseks, soovi korral küsimuste ja seisukohtade esitamiseks avaliku tutvustuse perioodil 27.06.-14.07.025 ning avalikul koosolekul...

Kehtestamisele mineva uue linna üldplaneeringu Narva 2035 viimane avalik tutvustamine

Kõigil huvitatutel on viimane võimalus eeltoodud teemadega tutvumiseks, soovi korral küsimuste ja seisukohtade esitamiseks avaliku tutvustuse perioodil 27.06.-14.07.025 ning avalikul koosolekul...

Arhitektuuri- ja Linnaplaneerimise Amet võttis kokku arhitektuurivõistluse tulemused eesmärgiga leida koolihoonele ja selle välialadele parim arhitektuurne lahendus ning pakkuda parimat lahendust...

Selgunud on Narva Soldina linnaosa uue kooli arhitektuurivõistluse tulemused

Arhitektuuri- ja Linnaplaneerimise Amet võttis kokku arhitektuurivõistluse tulemused eesmärgiga leida koolihoonele ja selle välialadele parim arhitektuurne lahendus ning pakkuda parimat lahendust...

Linn osaleb alates 2022. aasta sügisest rahvusvahelises koostööprojektis LIFE LATESTadapt – „Looduspõhiste ja nutikate lahenduste portfoolio väljatöötamine ja demonstreerimine linnade...

Narva alustab uudse sadevee ringkasutuse pilootprojekti elluviimist Kudrukülas

Linn osaleb alates 2022. aasta sügisest rahvusvahelises koostööprojektis LIFE LATESTadapt – „Looduspõhiste ja nutikate lahenduste portfoolio väljatöötamine ja demonstreerimine linnade...

Arhitektuuri- ja Linnaplaneerimise Amet teatab, et alates 16.06.2025 ameti spetsialistidel lakkavad töötamast lauatelefonide numbrid ja spetsialistidega saab ühendust võtta vaid mobiiltelefonide teel.

Alates 16. juunist muutuvad telefoninumbrid

Arhitektuuri- ja Linnaplaneerimise Amet teatab, et alates 16.06.2025 ameti spetsialistidel lakkavad töötamast lauatelefonide numbrid ja spetsialistidega saab ühendust võtta vaid mobiiltelefonide teel.

Projekteerimistingimuste eelnõu kohta võite esitada Arhitektuuri- ja Linnaplaneerimise Ametile oma arvamuse ja vastuväited 14 päeva jooksul kuulutuse avaldamisest postiaadressile Peetri plats 5,...

Projekteerimistingimuste eelnõu (4. Paemurru 19)

Projekteerimistingimuste eelnõu kohta võite esitada Arhitektuuri- ja Linnaplaneerimise Ametile oma arvamuse ja vastuväited 14 päeva jooksul kuulutuse avaldamisest postiaadressile Peetri plats 5,...

Küsimustik on veebis kättesaadav kuni 16. juunini.

Uurimisprojekti küsimustik

Küsimustik on veebis kättesaadav kuni 16. juunini.

Märgusõnadele vastavate nimekaardi ümbrike avamine ja nende autorite avalikustamine toimub 17.06.2025 kell 15:00 Raekojas. Palume kõigil, kes tunnevad huvi ürituse vastu, teatada oma osalemisest...

Soldina linnaosa põhikooli hoone arhitektuurivõistluse tulemuste avalikustamine ja võitjate autasustamine

Märgusõnadele vastavate nimekaardi ümbrike avamine ja nende autorite avalikustamine toimub 17.06.2025 kell 15:00 Raekojas. Palume kõigil, kes tunnevad huvi ürituse vastu, teatada oma osalemisest...

Projekteerimistingimuste eelnõu kohta võite esitada Arhitektuuri- ja Linnaplaneerimise Ametile oma arvamuse ja vastuväited postiaadressile Peetri plats 5, 20308 Narva linn või e-posti aadressile...

Projekteerimistingimuste eelnõu (Hariduse 22 spordihoone)

Projekteerimistingimuste eelnõu kohta võite esitada Arhitektuuri- ja Linnaplaneerimise Ametile oma arvamuse ja vastuväited postiaadressile Peetri plats 5, 20308 Narva linn või e-posti aadressile...

Projekteerimistingimuste eelnõu kohta võite esitada Arhitektuuri- ja Linnaplaneerimise Ametile oma arvamuse ja vastuväited 14 päeva jooksul kuulutuse avaldamisest postiaadressile Peetri plats 5,...

Projekteerimistingimuste eelnõu (1. Paemurru tn 9)

Projekteerimistingimuste eelnõu kohta võite esitada Arhitektuuri- ja Linnaplaneerimise Ametile oma arvamuse ja vastuväited 14 päeva jooksul kuulutuse avaldamisest postiaadressile Peetri plats 5,...

Projekteerimistingimuste eelnõu kohta võite esitada Arhitektuuri- ja Linnaplaneerimise Ametile oma arvamuse ja vastuväited 14 päeva jooksul kuulutuse avaldamisest postiaadressile Peetri plats 5,...

Projekteerimistingimuste eelnõu (Sinilille 3)

Projekteerimistingimuste eelnõu kohta võite esitada Arhitektuuri- ja Linnaplaneerimise Ametile oma arvamuse ja vastuväited 14 päeva jooksul kuulutuse avaldamisest postiaadressile Peetri plats 5,...

Narva Linnavalitsuse Arhitektuuri- ja Linnaplaneerimise Amet küsib hinnapakkumist omanikujärelevalve teaostamiseks kuivendussüsteemi (sh mahutid ja torustik) ja tuletõrjeveevõtukoha rajamisel.

Hanketeade nr 19 /lisatud 20.05.2025/

Narva Linnavalitsuse Arhitektuuri- ja Linnaplaneerimise Amet küsib hinnapakkumist omanikujärelevalve teaostamiseks kuivendussüsteemi (sh mahutid ja torustik) ja tuletõrjeveevõtukoha rajamisel.

Ootame 65-aastaseid ja vanemaid narvalasi osalema igapäevase liikumise harjumusi ja nendega seotud väljakutseid kaardistavas uuringus.

Projekti MARLENE küsitlus

Ootame 65-aastaseid ja vanemaid narvalasi osalema igapäevase liikumise harjumusi ja nendega seotud väljakutseid kaardistavas uuringus.

Projekteerimistingimuste eelnõu kohta võite esitada Arhitektuuri- ja Linnaplaneerimise Ametile oma arvamuse ja vastuväited 14 päeva jooksul kuulutuse avaldamisest postiaadressile Peetri plats 5,...

Projekteerimistingimuste eelnõu (Tapamaja, Suve, Sügise, Talve, Väike-Rakvere)

Projekteerimistingimuste eelnõu kohta võite esitada Arhitektuuri- ja Linnaplaneerimise Ametile oma arvamuse ja vastuväited 14 päeva jooksul kuulutuse avaldamisest postiaadressile Peetri plats 5,...

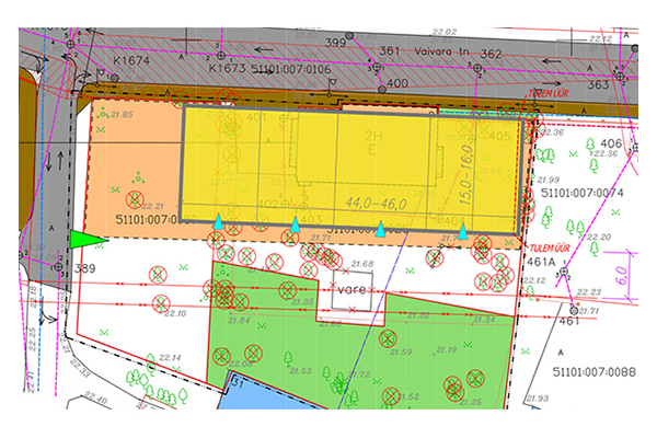
Projekteerimistingimuste eelnõu kohta võib Arhitektuuri- ja Linnaplaneerimise Ametile oma arvamuse ja vastuväiteid esitada 14 päeva jooksul kuulutuse avaldamisest postiaadressile Peetri plats 5,...

Projekteerimistingimuste eelnõu (Vaivara 4 ja 8)

Projekteerimistingimuste eelnõu kohta võib Arhitektuuri- ja Linnaplaneerimise Ametile oma arvamuse ja vastuväiteid esitada 14 päeva jooksul kuulutuse avaldamisest postiaadressile Peetri plats 5,...

Narva Linnavalitsuse Arhitektuuri- ja Linnaplaneerimise Amet teatab Narva Linnavolikogu 24.04.2025 istungil vastuvõetud otsustest...

Teade (Elektrijaama tee 59e, Tallinna mnt 71, Raekoja plats)

Narva Linnavalitsuse Arhitektuuri- ja Linnaplaneerimise Amet teatab Narva Linnavolikogu 24.04.2025 istungil vastuvõetud otsustest...

Arvamusi planeeringu kohta saab esitada Arhitektuuri- ja Linnaplaneerimise Ameti postiaadressile Peetri plats 5, 20308 Narva linn või e-posti aadressile narvaplan@narva.ee.

Kreenholmi 54a maa-ala detailplaneering ja planeeringu avalik väljapanek 05.-18.05.2025

Arvamusi planeeringu kohta saab esitada Arhitektuuri- ja Linnaplaneerimise Ameti postiaadressile Peetri plats 5, 20308 Narva linn või e-posti aadressile narvaplan@narva.ee.

Projekteerimistingimuste eelnõu kohta võite esitada Arhitektuuri- ja Linnaplaneerimise Ametile oma arvamuse ja vastuväited 14 päeva jooksul kuulutuse avaldamisest postiaadressile Peetri plats 5,...

Projekteerimistingimuste eelnõu (Kanepi 2)

Projekteerimistingimuste eelnõu kohta võite esitada Arhitektuuri- ja Linnaplaneerimise Ametile oma arvamuse ja vastuväited 14 päeva jooksul kuulutuse avaldamisest postiaadressile Peetri plats 5,...

Projekteerimistingimuste eelnõu kohta võite esitada Arhitektuuri- ja Linnaplaneerimise Ametile oma arvamuse ja vastuväited 14 päeva jooksul kuulutuse avaldamisest postiaadressile Peetri plats 5,...

Projekteerimistingimuste eelnõu (Tormi 10)

Projekteerimistingimuste eelnõu kohta võite esitada Arhitektuuri- ja Linnaplaneerimise Ametile oma arvamuse ja vastuväited 14 päeva jooksul kuulutuse avaldamisest postiaadressile Peetri plats 5,...

Projekteerimistingimuste eelnõu kohta võite esitada Arhitektuuri- ja Linnaplaneerimise Ametile oma arvamuse ja vastuväited 14 päeva jooksul kuulutuse avaldamisest postiaadressile Peetri plats 5,...

Projekteerimistingimuste eelnõu

Projekteerimistingimuste eelnõu kohta võite esitada Arhitektuuri- ja Linnaplaneerimise Ametile oma arvamuse ja vastuväited 14 päeva jooksul kuulutuse avaldamisest postiaadressile Peetri plats 5,...

Peamised ülesanded on järelvalve osakonna igapäevase töö juhtimine ja koordineerimine, lubade ja teatiste menetluste kõrgetasemelise korraldamine vastavalt kehtivatele normidele ja määrustele,...

Arhitektuuri- ja Linnaplaneerimise Amet otsib oma meeskonda järelvalve osakonna juhatajat

Peamised ülesanded on järelvalve osakonna igapäevase töö juhtimine ja koordineerimine, lubade ja teatiste menetluste kõrgetasemelise korraldamine vastavalt kehtivatele normidele ja määrustele,...

Projekteerimistingimuste eelnõu kohta võib Arhitektuuri- ja Linnaplaneerimise Ametile oma arvamuse ja/või vastuväiteid esitada 14 päeva jooksul kuulutuse avaldamisest postiaadressile Peetri plats...

Projekteerimistingimuste eelnõu (P. Kerese 29)

Projekteerimistingimuste eelnõu kohta võib Arhitektuuri- ja Linnaplaneerimise Ametile oma arvamuse ja/või vastuväiteid esitada 14 päeva jooksul kuulutuse avaldamisest postiaadressile Peetri plats...

Arvamusi planeeringu kohta saab esitada Arhitektuuri- ja Linnaplaneerimise Ameti postiaadressile Peetri plats 5, 20308 Narva linn või e-posti aadressile narvaplan@narva.ee. Avaliku väljapaneku...

14.-24.04.2025 Soldina põhikooli maa-ala detailplaneeringu eskiisi avalik väljapanek

Arvamusi planeeringu kohta saab esitada Arhitektuuri- ja Linnaplaneerimise Ameti postiaadressile Peetri plats 5, 20308 Narva linn või e-posti aadressile narvaplan@narva.ee. Avaliku väljapaneku...

Projekteerimistingimuste eelnõu kohta võite esitada Arhitektuuri- ja Linnaplaneerimise Ametile oma arvamuse ja vastuväited 14 päeva jooksul kuulutuse avaldamisest postiaadressile Peetri plats 5,...

Projekteerimistingimuste eelnõu (Jalaka 2)

Projekteerimistingimuste eelnõu kohta võite esitada Arhitektuuri- ja Linnaplaneerimise Ametile oma arvamuse ja vastuväited 14 päeva jooksul kuulutuse avaldamisest postiaadressile Peetri plats 5,...

Projekteerimistingimuste eelnõu kohta võite esitada Arhitektuuri- ja Linnaplaneerimise Ametile oma arvamuse ja vastuväited 14 päeva jooksul kuulutuse avaldamisest postiaadressile Peetri plats 5,...

Projekteerimistingimuste eelnõu (Kalda 3c)

Projekteerimistingimuste eelnõu kohta võite esitada Arhitektuuri- ja Linnaplaneerimise Ametile oma arvamuse ja vastuväited 14 päeva jooksul kuulutuse avaldamisest postiaadressile Peetri plats 5,...

Projekteerimistingimuste eelnõu kohta võib Arhitektuuri- ja Linnaplaneerimise Ametile oma arvamuse ja vastuväiteid esitada 14 päeva jooksul kuulutuse avaldamisest postiaadressile Peetri plats 5,...

Projekteerimistingimuste eelnõu (Oru 4)

Projekteerimistingimuste eelnõu kohta võib Arhitektuuri- ja Linnaplaneerimise Ametile oma arvamuse ja vastuväiteid esitada 14 päeva jooksul kuulutuse avaldamisest postiaadressile Peetri plats 5,...

Arhitektuuri- ja Linnaplaneerimise Amet küsib hinnapakkumist Narva pilootalal kuivendussüsteemi (sh mahutid ja torustik) ja tuletõrjeveevõtukoha rajamisel omanikujärelevalve teostamiseks.

Hanketeade nr 9 /lisatud 24.03.2025/

Arhitektuuri- ja Linnaplaneerimise Amet küsib hinnapakkumist Narva pilootalal kuivendussüsteemi (sh mahutid ja torustik) ja tuletõrjeveevõtukoha rajamisel omanikujärelevalve teostamiseks.

Projekteerimistingimuste eelnõu kohta võite esitada Arhitektuuri- ja Linnaplaneerimise Ametile oma arvamuse ja vastuväited 14 päeva jooksul kuulutuse avaldamisest postiaadressile Peetri plats 5,...

Projekteerimistingimuste eelnõu (Rakvere 26)

Projekteerimistingimuste eelnõu kohta võite esitada Arhitektuuri- ja Linnaplaneerimise Ametile oma arvamuse ja vastuväited 14 päeva jooksul kuulutuse avaldamisest postiaadressile Peetri plats 5,...

Projekteerimistingimuste eelnõu kohta võite esitada Arhitektuuri- ja Linnaplaneerimise Ametile oma arvamuse ja vastuväited 14 päeva jooksul kuulutuse avaldamisest postiaadressile Peetri plats 5,...

Projekteerimistingimuste eelnõu (Tehase 38-42, Tiigi 2, 2a, 2i, 2n)

Projekteerimistingimuste eelnõu kohta võite esitada Arhitektuuri- ja Linnaplaneerimise Ametile oma arvamuse ja vastuväited 14 päeva jooksul kuulutuse avaldamisest postiaadressile Peetri plats 5,...

Arhitektuurivõistluse objektiks on uue põhikooli hoone koos kooli välialade, sh staadioni, väliõppe- ja spordialadega, ning neid teenindavate ehitistega.

Algas Narva Soldina linnaosa põhikooli hoone arhitektuurivõistlus

Arhitektuurivõistluse objektiks on uue põhikooli hoone koos kooli välialade, sh staadioni, väliõppe- ja spordialadega, ning neid teenindavate ehitistega.

RHR: Narva Soldina linnaosa põhikooli hoone arhitektuurivõistlus

Hanketeade nr 5 /lisatud 10.02.2025/

RHR: Narva Soldina linnaosa põhikooli hoone arhitektuurivõistlus

Projekteerimistingimuste eelnõu kohta võite esitada Arhitektuuri- ja Linnaplaneerimise Ametile oma arvamuse ja vastuväited 14 päeva jooksul kuulutuse avaldamisest postiaadressile Peetri plats 5,...

Projekteerimistingimuste eelnõu (Roheluse 20)

Projekteerimistingimuste eelnõu kohta võite esitada Arhitektuuri- ja Linnaplaneerimise Ametile oma arvamuse ja vastuväited 14 päeva jooksul kuulutuse avaldamisest postiaadressile Peetri plats 5,...

Projekteerimistingimuste eelnõu kohta võite esitada Arhitektuuri- ja Linnaplaneerimise Ametile oma arvamuse ja vastuväited 14 päeva jooksul kuulutuse avaldamisest postiaadressile Peetri plats 5,...

Projekteerimistingimuste eelnõu (Tormi 39)

Projekteerimistingimuste eelnõu kohta võite esitada Arhitektuuri- ja Linnaplaneerimise Ametile oma arvamuse ja vastuväited 14 päeva jooksul kuulutuse avaldamisest postiaadressile Peetri plats 5,...

Projekteerimistingimuste eelnõu kohta võite esitada Arhitektuuri- ja Linnaplaneerimise Ametile oma arvamuse ja vastuväited 14 päeva jooksul kuulutuse avaldamisest postiaadressile Peetri plats 5,...

Projekteerimistingimuste eelnõu (vesinikutoru rajamine)

Projekteerimistingimuste eelnõu kohta võite esitada Arhitektuuri- ja Linnaplaneerimise Ametile oma arvamuse ja vastuväited 14 päeva jooksul kuulutuse avaldamisest postiaadressile Peetri plats 5,...

Projekteerimistingimuste eelnõu kohta võite esitada Arhitektuuri- ja Linnaplaneerimise Ametile oma arvamuse ja vastuväited 14 päeva jooksul kuulutuse avaldamisest postiaadressile Peetri plats 5,...

Projekteerimistingimuste eelnõu (4. Paemurru 22)

Projekteerimistingimuste eelnõu kohta võite esitada Arhitektuuri- ja Linnaplaneerimise Ametile oma arvamuse ja vastuväited 14 päeva jooksul kuulutuse avaldamisest postiaadressile Peetri plats 5,...